Residentie Nova is een nieuwbouwproject gelegen in het centrum van het rustige Opwijk. Bij de ontwikkeling van dit project werd er rekening gehouden met een rustgevende en verzorgde architecturale invulling: gebouwen en inplanting vormen een modern, harmonisch en esthetisch geheel, achteraan voorzien van een mooi stukje groen. Deze woonparel is voorzien van alle comfort en wordt afgewerkt met materialen van topkwaliteit!
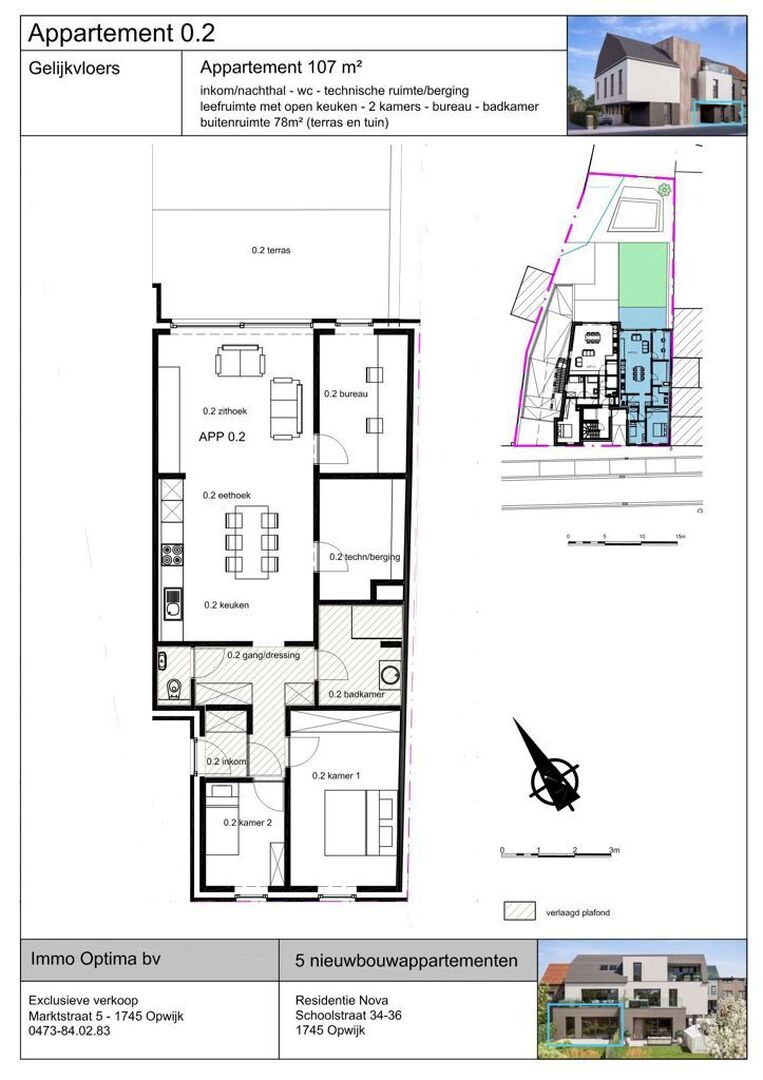
Dit stijlvolle appartement van 107m² is gelegen op het gelijkvloers. We komen binnen in dit appartement via de gemeenschappelijke inkom en gaan zo naar de woonkamer met open keuken. In de private inkomhal bevindt zich een apart toilet. Via de nachthal komen we in de 1e slaapkamer, de 2e slaapkamer en de badkamer. Technische ruimte en bureel aanwezig. Aan de woonkamer bevind zich ook een terras van 19,56 m² met aansluitend een tuin van 58m². Mogelijkheid tot aankoop van ondergrondse berging, autostaanplaats of garagebox. Prijs excl. BTW & kosten.
(Mogelijk aan 6% BTW onder voorwaarden!)
- Vg/Wg/Gmo/Gvkr/Gvv
- EPB in opmaak.
- Niet gelegen in overstromingsgevoelig gebied - P-score: D - G-score: B
Dit stijlvolle appartement van 107m² is gelegen op het gelijkvloers. We komen binnen in dit appartement via de gemeenschappelijke inkom en gaan zo naar de woonkamer met open keuken. In de private inkomhal bevindt zich een apart toilet. Via de nachthal komen we in de 1e slaapkamer, de 2e slaapkamer en de badkamer. Technische ruimte en bureel aanwezig. Aan de woonkamer bevind zich ook een terras van 19,56 m² met aansluitend een tuin van 58m². Mogelijkheid tot aankoop van ondergrondse berging, autostaanplaats of garagebox. Prijs excl. BTW & kosten.
(Mogelijk aan 6% BTW onder voorwaarden!)
- Vg/Wg/Gmo/Gvkr/Gvv
- EPB in opmaak.
- Niet gelegen in overstromingsgevoelig gebied - P-score: D - G-score: B
indeling
- Bureau
- 9 m²
- Keuken
- Ja
- Slaapkamers
- 2
- Slaapkamer 1
- 15 m²
- Slaapkamer 2
- 6 m²
- Badkamers
- 1
- Terras
- Ja
- Terrasoppervlakte
- 20 m²
financieel
- Prijs
- € 430.000
- Beschikbaarheid
- Bij oplevering
- Verkoop onder BTW stelsel
- Ja
ligging
- Omgeving school
- Ja
- Omgeving openbaar vervoer
- Ja
- Omgeving winkels
- Ja
comfort
- Gemeubeld
- Nee
- Lift
- Ja
gebouw
- Bewoonbare oppervlakte
- 107 m²
- Type bebouwing
- Gesloten
- Bouwjaar
- 2025
terrein
- Tuin
- 58 m²
energie
- Type ramen
- Aluminium
- Dubbel glas
- Ja
- Verwarming
- warmtepomp
- Type verwarming
- Individueel
technieken
- Elektriciteit
- Ja
stedenbouwkundige informatie
- Bestemming
- Woongebied
- Bouwvergunning
- Ja
- Verkavelingsvergunning
- Nee
- Voorkooprecht
- Nee
- Dagvaarding
- Geen rechterlijke herstelmaatregel of bestuurlijke maatregel opgelegd
- G-score
- B
- P-score
- D
- Bodemattest
- Ja
Interesse in deze eigendom?
Dimitri De Donder
0475 79 73 06
ref: 7586425
Blijf op de hoogte
Schrijf u inOp zoek naar iets specifiek? Laat uw zoekwensen hier achter en we zorgen ervoor dat u het juiste aanbod als eerste in uw mailbox krijgt
Gratis schatting
Wil u graag de échte verkoopwaarde van uw woning kennen? Vraag nu een gratis schatting voor verkoop!
Vraag hier aan
Wenst u te verkopen
U wil uw woning, appartement of bouwgrond snel en zorgeloos verkopen aan een goede prijs? Dan bent u bij Optima uit Opwijk aan het juiste adres.
Ik wil verkopen