Penthouse in Opwijk Centrum

€ 520.000


Oude Brugstraat, 1745 Opwijk

  • 118 m²
  • 3
  • 1
Waze
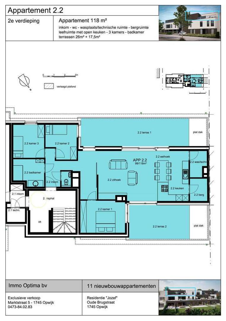
Residentie Jozef is een nieuwbouwproject gelegen in het centrum van het rustige Opwijk. Bij de ontwikkeling van dit project werd er rekening gehouden met een rustgevende en verzorgde architecturale invulling: gebouwen en inplanting vormen een modern, harmonisch en esthetisch geheel, achteraan voorzien van een mooi stukje groen. Deze woonparel is voorzien van alle comfort en wordt afgewerkt met materialen van topkwaliteit! Deze penthouse van 118m² is gelegen op de tweede verdieping. We komen binnen in dit appartement via de gemeenschappelijke inkom. In de centrale gang vinden we de badkamer, drie slaapkamers en een apart toilet, daarna komen we in de leefruimte met open keuken en aansluitende wasplaats/technische ruimte en een bergruimte. Geniet op de prachtige terrassen van 25m² en 17m². Mogelijkheid tot aankoop van ondergrondse garagebox. Prijs excl. BTW & kosten.

Wg - Vg - Gvv - Gvkr - Gmo.
- EPB in opmaak.
- Niet gelegen in overstromingsgevoelig gebied - P-score:A - G-score: onbekend

indeling

Woonkamer
52 m²
Keuken
Ja
Slaapkamers
3
Slaapkamer 1
13 m²
Slaapkamer 2
10 m²
Slaapkamer 3
9 m²
Badkamers
1
Badkamer
7 m²
Toiletten
1
Terras
Ja
Terrasoppervlakte
42 m²

financieel

Prijs
€ 520.000
Beschikbaarheid
Bij oplevering
Verkoop onder BTW stelsel
Ja

ligging

Omgeving school
Ja
Omgeving winkels
Ja

comfort

Gemeubeld
Nee
Lift
Ja

gebouw

Bewoonbare oppervlakte
118 m²
Type bebouwing
Gesloten
Bouwjaar
2024
Verdieping
2

energie

Type ramen
Aluminium
Dubbel glas
Ja
Verwarming
warmtepomp

technieken

Elektriciteit
Ja

stedenbouwkundige informatie

Bestemming
Woongebied
Bouwvergunning
Ja
Verkavelingsvergunning
Nee
Voorkooprecht
Nee
Dagvaarding
Geen rechterlijke herstelmaatregel of bestuurlijke maatregel opgelegd
P-score
A
Bodemattest
Ja
Babs Robberechts

Babs Robberechts

0477 32 99 36

Contacteer ons

Interesse in deze eigendom?

Babs Robberechts

Babs Robberechts

0477 32 99 36

ref: 7318909

Gelieve uw aanspreking in te vullen
Gelieve uw voornaam in te vullen
Gelieve uw naam in te vullen
Gelieve uw e-mail in te vullen
Gelieve uw telefoon in te vullen
Gelieve uw uw bericht in te vullen
Gelieve akkoord te gaan met onze algemene voorwaarden

Blijf op de hoogte

Schrijf u in

Op zoek naar iets specifiek? Laat uw zoekwensen hier achter en we zorgen ervoor dat u het juiste aanbod als eerste in uw mailbox krijgt

Gratis schatting

Wil u graag de échte verkoopwaarde van uw woning kennen? Vraag nu een gratis schatting voor verkoop!

Vraag hier aan
Gratis schatting

Wenst u te verkopen

U wil uw woning, appartement of bouwgrond snel en zorgeloos verkopen aan een goede prijs? Dan bent u bij Optima uit Opwijk aan het juiste adres.

Ik wil verkopen
Gratis schatting